207、等直径水管,A-A为过流断面,B-B为水平面,1、2、3、4为面上各点,各点的流动参数有以下关系( )。

208、伯努利方程中
表示( )。
209、水平放置的渐扩管,如忽略水头损失,断面形心点的压强,有以下关系( )。

215、如图所示,有两个长度和断面尺寸相同的支管并联,如果在支管2中加一调节阀个调节阀,则水头损失( )。

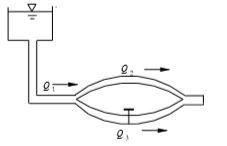
221、并联管路的支管上装有阀门,已知阀门全开时流量为Q₁,Q₂,Q₃,今将阀门开度关小,其他条件不变,流量变化为( )。

227、支状管网的流量为Q₁,Q₂,Q₃,若在支管3的末端加一段管子,如下图中虚线所示,则流量变化为( )。

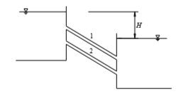
237、两水池水位差为用两根等径、等长、沿程阻力系数都相等的管道联接,按长管考虑时则( )。

240、图示两根完全相同的长管道,只是安装高度不同,两管的流量关系是( )。

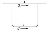
241、并联管道1、2,两管的直径相同,沿程阻力系数相同,长度l₂=3l₁则通过的流量为( )。

242、并联管道1,2,3,A,B之间的水头损失是( )。

244、并联管道阀门K全开时各段流量为Q₁、Q₂、Q₃,现关小阀门K,其他条件不变,流量的变化为( )。
